
Termékválasztékunkat a piaci igényeknek megfelelően fejlesztettük, így kínálunk megoldást az egyszerűbb műszaki elvárásoknak, és a legmagasabb igényekre is. A nyílászárók műszaki jellemzőit minden esetben „Teljesítmény Nyilatkozat“-tal tanúsítjuk.
Hőszigetelés
A hőszigetelésre vonatkozó hazai előírásokat már az S8000 rendszer is teljesíti, itt az alap üvegezéssel ( 4-16-4 Low-E, argongáz töltéssel, melegperemmel) az ablak Uw értéke 1,15 W/m²K alatt lesz, amely kielégíti a hazai vonatkozó előírásokat. Ez a profilrendszer háromrétegű Ug=0,7 W/m²K melegperemes üvegezéssel még jobb hőszigetelést nyújt, az ablak 1,0 W/m2K alatti hőátbocsátású lesz.
Hosszú távon mégis azt javasoljuk, hogy a jelenlegi legjobb termékcsaládot válasszák, ezzel jelentős energia megtakarítást és komfortot élvezhetnek a jövőben hosszú évekig. Erre az igényre fejlesztettük ki a GEALAN S9000 profilrendszerből ablak családunkat. Ez a rendszer vastagabb, középtömítéses profilokkal készül, hőszigetelése háromrétegű Ug=0,6 W/m²K melegperemes üvegezéssel 0,8 W/m²K alatti Uw értéket eredményez, amit a köznyelvben u.n. passzívház ablakként ismernek.
(A fentiekben megadott értékek az európai szabvány szerinti 123×148 cm-es egyszárnyú ablakra vonatkoznak)
Az egyes ablak családok hőszigetelési értékét a mellékletben lévő táblázatban mutatjuk be, bár egy adott épület valamennyi nyílászáróra ez csak tájékoztató jellegű. Ekkor a tervekben szereplő nyílászáró konszignáció alapján ki fogjuk Önnek számolni valamennyi tétel konkrét hőszigetelési értékét, amely megmutatja a szerkezetek tényleges hőszigetelését az adott méretben és üvegezéssel.


Hanggátlás
Az épületek homlokzatát sokszor jelentős zajterhelés éri, ez elsősorban a gépjármű forgalomból, vasúti közlekedésből, ipari övezet közelségéből származik. Ezekbe a homlokzatokba nem elegendő a normál kb. Rw=34 dB (decibell) hanggátlású ablakok alkalmazása. A három rétegű hőszigetelő üvegezés sem megoldás ide, azonban ha előre gondolunk a zajterhelésre, lehetőség van hanggátló üvegezés beépítésére, amellyel akár Rw=43 dB hanggátlást is elérhetünk. A normál 4-12-4-12-4 üvegezéssel készülő ablak 34 dB hanggátlásával szemben már a 6-14-4-14-4 üvegezés is jelentősen jobb hanggátlást tud, ezzel ablakunk már 40 dB hanggátlású lesz, amely lehetővé teszi a nyugodt alvást, pihenést. Kérjük konkrét igényével keresse meg szakembereinket, akik készséggel tájékoztatják Önt.
Betörésgátlás
Legtöbben úgy gondolnánk, hogy egyedül a bejárati ajtó betörésgátlását kell megoldani. Ez ugyan igaz lehet egy magas épületben, ahol az ablakok nem támadhatók, azonban egy családi ház, földszinti lakás esetén leggyakrabban már nem az ajtók, hanem a hátsó teraszajtók, ablakok a betörések kedvelt célpontjai. Az ablakok alap kivitelben kiemelésgátlással rendelkeznek, ez azonban nem azonos a betörésgátlással. Amennyiben az ingatlan veszélyeztetett, lehetőség van több fokozatban speciális betörésgátlási tulajdonsággal rendelkező ablak gyártására.
Ekkor betörésgátló vasalat és üvegezés kerül beépítésre, amely ellenáll a leggyakoribb betörési módoknak.
Vízzárás, légzárás, szélállóság
Termékeinket laboratóriumi körülmények között bevizsgálták, ezek alapján az általunk kiadott „Teljesítmény Nyilatkozat“ tartalmazza a tényleges értékeket.
Fontosnak tartjuk a felhasználók figyelmét itt is felhívni, hogy a nyílászárók kiváló légzárása következtében különösen felújítások során gondoskodni kell a szellőztetés, a légcsere megoldásáról. Ennek hiányában az esetleg képződő páratartalom növekedés páralecsapódást, esetleg penészesedést okozhat. Erre mi is kínálunk Önnek ablakba beépített szellőzőket, de más módon, pl. gépi szellőzőkkel is meg lehet előzni a nem kívánt párásodásokat. A szellőztetés elmaradásából eredő párásodás, penészesedés nem a nyílászáró hibája, ellenkezőleg, annak kiváló légzárására és a megemekedett belső páratartalomra utal.
Beépítés
A nyílászárók szakszerű beépítése és beállítása alapos szakmai ismereteket és gyakorlatot kíván. A szakszerűtlen beépítés még a legjobb terméket is tönkre teszi, elmaradhatnak annak előnyös tulajdonságai. Javasoljuk, hogy képzett szakemberrel végeztesse el a beépítést, cégünk készséggel ajánl Önnek megfelelő beépítőket.
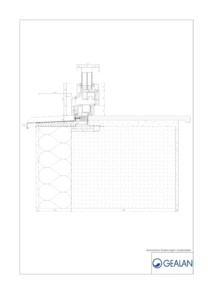
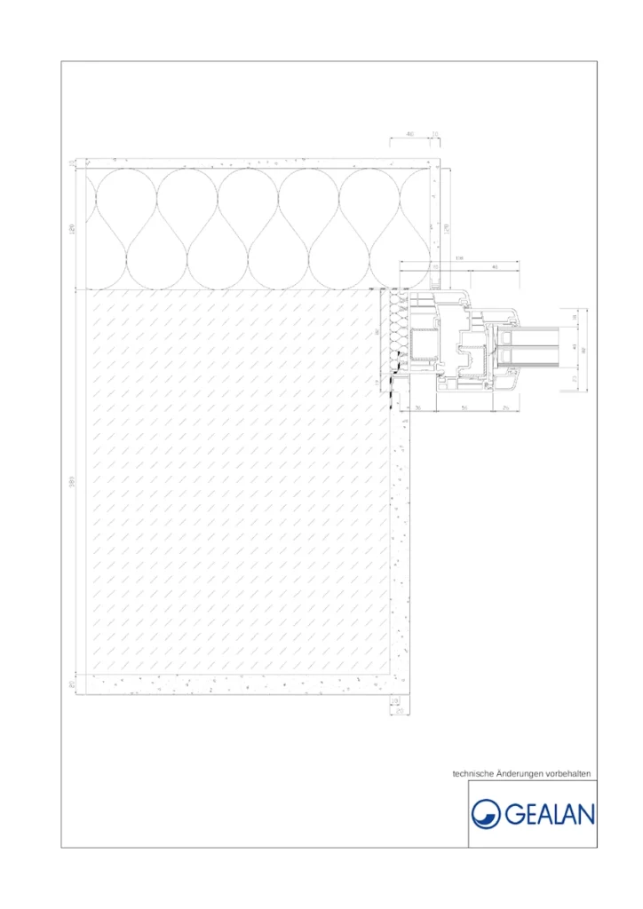
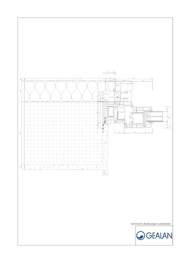
A beépítésre vonatkozó javaslatunkat mellékletben találja. Alapja a szerkezet beszintezése a homlokzatban, megfelelő rögzítése a falazatba, a csatlakozási hézag hézagmentes tömítése, a szerkezet komfortos működésének beállítása, beszabályozása. Bonyolult falszerkezet vagy beépítési helyzet (pl. külső falsíkon kívüli beépítés, RAL beépítés stb.) esetén kérje szakmai segítségünket. Szakszerűtlen beépítés esetén a termékre érvényes jótállás, szavatosság elvesztését kockáztatja!




